Early Career
Financial
Commercial
Institutional
Residential
Religious
Design Philosophy
About us
Contact Us
Early Career
Financial
Commercial
Institutional
Residential
Religious
Design Philosophy
About us
Contact Us
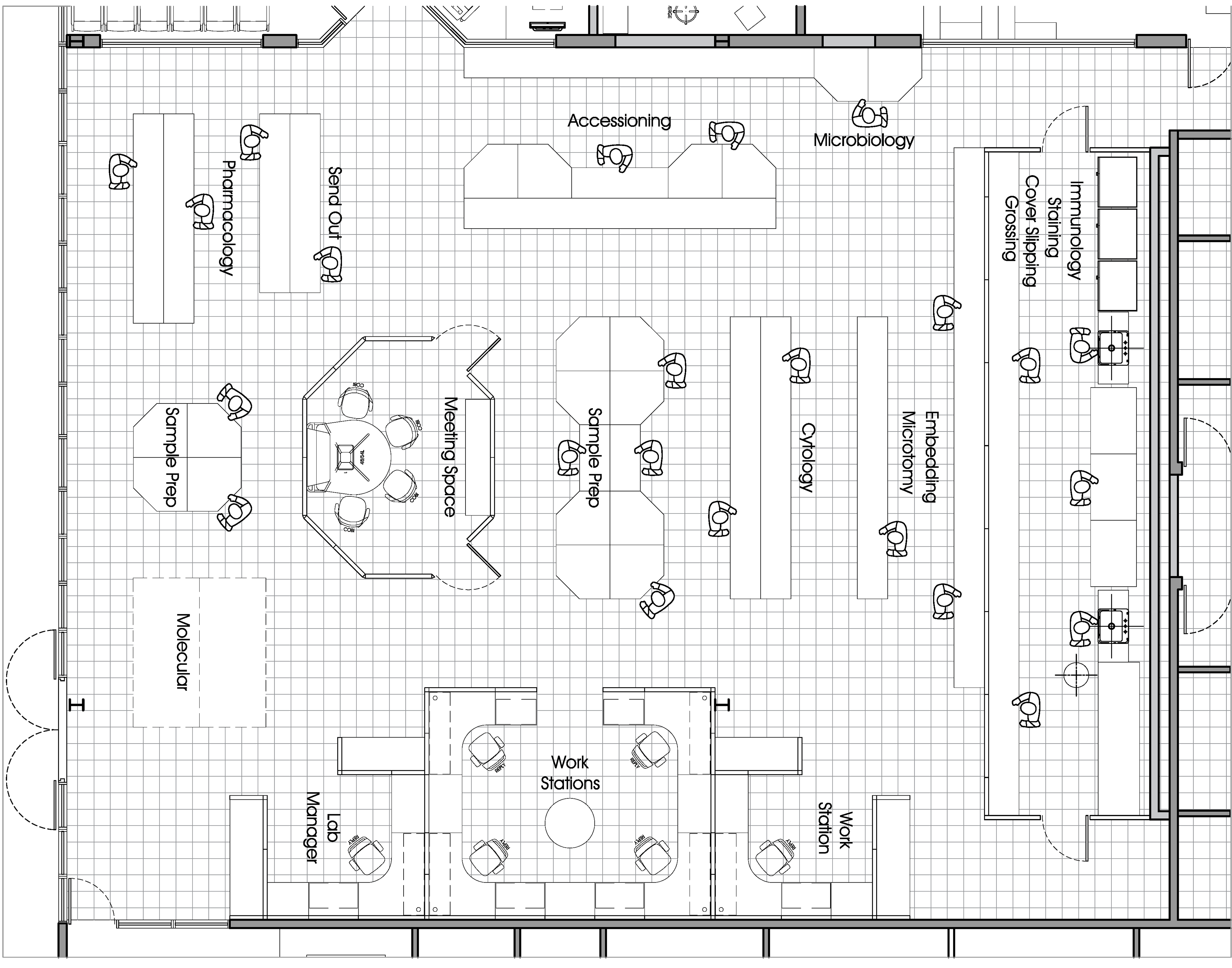
Pathological Laboratory
December, 2016
Design concept for a new pathological laboratory and office spaces in Carolina, Puerto Rico
↑
Back to Top