Early Career
Financial
Commercial
Institutional
Residential
Religious
Design Philosophy
About us
Contact Us
Early Career
Financial
Commercial
Institutional
Residential
Religious
Design Philosophy
About us
Contact Us
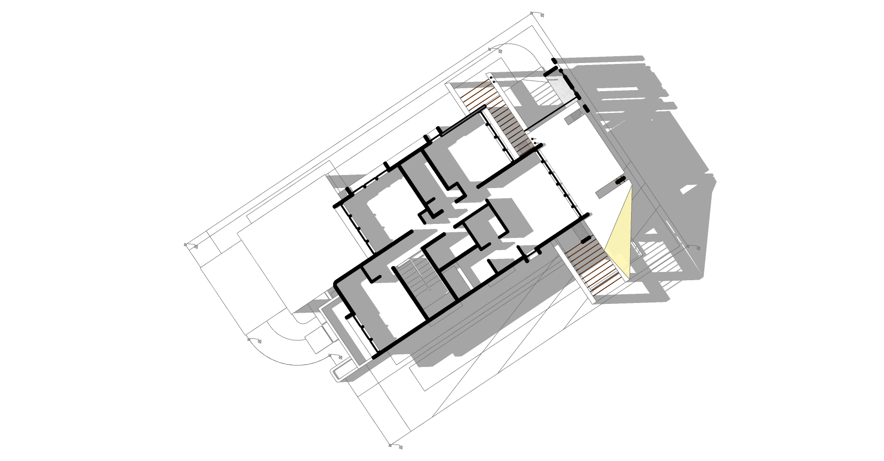
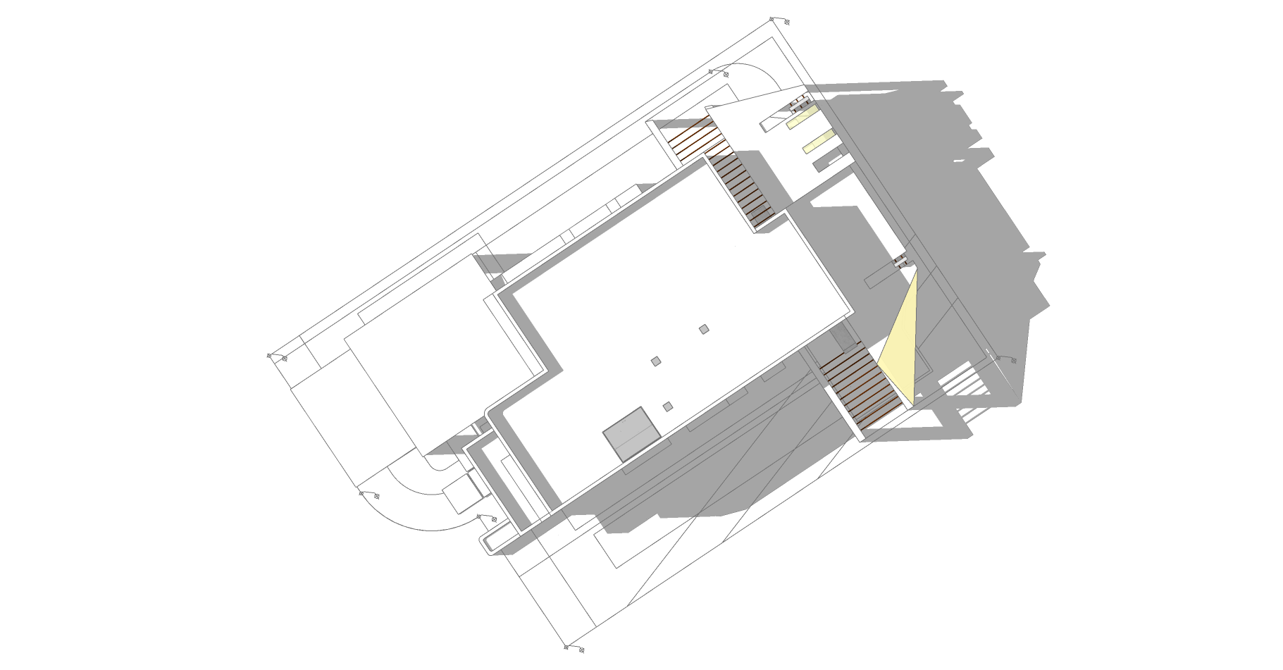
Residence in Guaynabo
February, 2018
Terrace remodel for a single family residence in Guaynabo, Puerto Rico.
↑
Back to Top